Singer House: Interior from
Historic American Buildings Survey

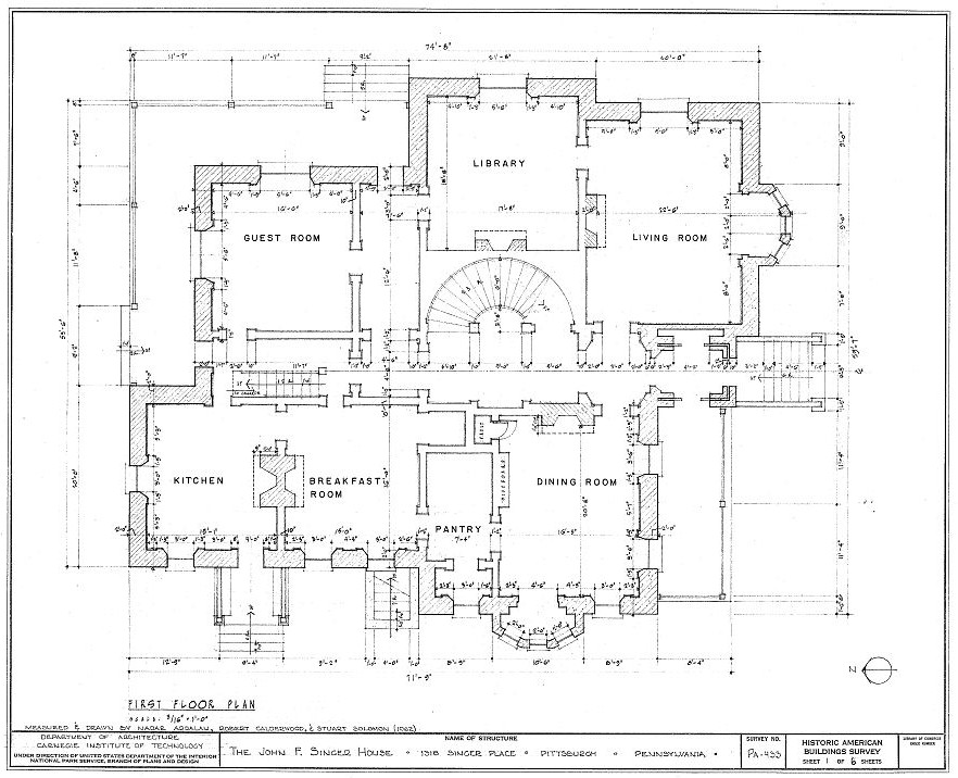
First floor:

Former dining room
Main entrance

Second floor:

______

Library of Congress, Historic American Buildings Survey, John F. Singer House.
https://www.loc.gov/pictures/search/?q=John%20F.%20Singer%20House&co=hh